角部屋なので、採光・通風はバッチリです。バルコニーは2面あり、広々使えます。
西区田方1丁目 ライオンズヒルズ田方 中古マンション
価格
1,050万円
所在地
広島県広島市西区田方1丁目
アクセス
- 広島電鉄宮島線 草津駅 徒歩9分 (684m)
- バス 徒歩3分 (185m)(鈴峯第3歩道橋[28鈴商線])
物件タイプ
中古マンション
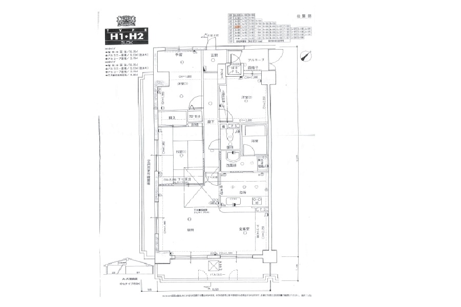
間取り
3LDK(洋室 6階 洋室 6階 和室 6階 LDK 6階 )
専有面積
78.35m²
築年月
1991/03
物件情報
| 所在地 | 広島県広島市西区田方1丁目 | ||
|---|---|---|---|
| アクセス |
| ||
| 価格 | 1,050万円 | ||
| 物件タイプ | 中古マンション | ||
| 間取り | 3LDK(洋室 6階 洋室 6階 和室 6階 LDK 6階 ) | ||
| 修繕積立金 | 28,170円 | ||
| 築年月 | 1991/03 | 新築/中古 | |
| 専有面積 | 78.35m² | 計測方式 | 壁芯 |
| バルコニー | 9.02m² | 向き | |
| 建物階数 | 地上10階 | 部屋階数 | 6階 |
| 部屋/区画番号 | 601 | 総戸/区画数 | 66 |
| 建物構造 | SRC | ||
| 管理形態 | 全部委託 管理人常駐 管理組合有 | ||
| 住宅保険料 | 修繕積立金 | 28,170円 | |
| 駐車場 | 9,450円 空有 | 取引態様 | 一般 |
| 引渡/入居時期 | 即時 | 現況 | 空家 |
| 周辺環境 |
広島市立鈴が峰小学校 広島市立古田中学校 |
||
| 設備・条件 | 給湯 温水洗浄便座 都市ガス | ||
| 物件番号 | 0001 | ||
| 自社物 | 自社物 | 状態 | 売出中 |
| 特記事項 | 「子育てにも、セカンドライフにも。陽光と風が心地よい、角部屋の開放感が魅力です。」 | ||
周辺地図
Loading…
※物件掲載内容と現況に相違がある場合は現況を優先と致します。
お問い合わせ
ちとせ不動産 〒737-0137 広島県呉市広小坪1丁目42-14 TEL/FAX:0823-74-3120 営業時間:AM9:00~PM5:00 宅建免許番号:広島県(1)第11677号
問い合わせフォーム
この物件をシェアする



























